Neem nu contact op. Bel 0592-205140

Keverkleuven 1

9403 ZC Assen

€ 319.500 k.k.

Woonoppervlakte
85m2

Perceelopervlakte
259 m2

Bouwjaar
1996

Soort bouw
EENGEZINSWONING

Omschrijving

Deze ruime hoekwoning staat op een perceel van 259 m² en biedt veel potentieel: een extra brede tuin, de mogelijkheid om vier slaapkamers te creëren en een gunstige ligging in de populaire woonwijk Marsdijk.

De woning ligt in een rustige, kindvriendelijke straat met het Anne Frankpark om de hoek. Winkelcentrum, basisscholen en sportvoorzieningen zijn op korte afstand. Met een paar autominuten bent u op de A28 en met de fiets staat u in korte tijd in het natuurgebied van de Drentse Aa.

Indeling
Begane grond:
Entree/hal met meterkast. Aan de rechterhand de lichte woonkamer met open keuken (samen ca. 38 m²). Via de tussenhal zijn het toilet met fonteintje en de tuin te bereiken. De vaste trap leidt naar de eerste verdieping.

Eerste verdieping:
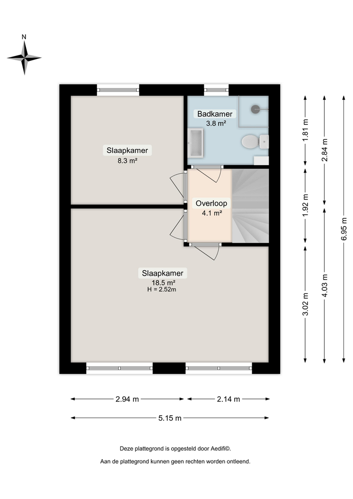
Rechts de badkamer met douche, wastafel en tweede toilet. Links de eerste slaapkamer van bijna 19 m², eenvoudig te splitsen in twee kamers. Daarnaast een tweede slaapkamer van ca. 8 m².

Tweede verdieping:
Vaste trap naar de zolder (ca. 17 m²) met cv-opstelling, witgoedaansluiting en knieschotberging. Deze verdieping telt nu niet mee in het aantal vierkante meters wonen volgens de NEN2580-meetnorm omdat er geen dakraam aanwezig is. Met een dakraam kan de ruimte officieel meetellen en kan hier een vierde slaapkamer worden gemaakt.

Tuin:
De diepe, brede achtertuin biedt zowel zon als schaduw. Achter in de tuin staat een vrijstaande houten berging met elektra.

Bijzonderheden
- Energielabel B
- Rustige, kindvriendelijke woonomgeving
- Nabij wijkwinkelcentrum, scholen, sportvoorzieningen en natuurgebied
- Diepe, brede tuin
- 4 slaapkamers eenvoudig te realiseren
- Schilderwerk buitenom uitgevoerd in 2025
- Geen aardbevingsschade geclaimd
- Niet-zelfbewoningsclausule van toepassing
- Aanvaarding in overleg, op korte termijn mogelijk

Kortom: een ideale gezinswoning met veel leefruimte, een grote tuin en uitbreidingsmogelijkheden, op een gunstige plek in Marsdijk. Plan snel een bezichtiging en ervaar zelf de ruimte en mogelijkheden van deze woning!

Kenmerken

  • Woonhuistype: Hoekwoning
  • Bouwvorm: Bestaande bouw
  • Daktype: Zadeldak
  • Energieklasse: B

Deze woning is al verkocht door ben-s.nl!

Wilt u ook uw woning door een makelaar van ben-s laten verkopen? Vul dan het onderstaande formulier in.