Neem nu contact op. Bel 0592-205140

Martin Luther Kingweg 26

9403 PA Assen

€ 525.000 k.k.

Woonoppervlakte
189m2

Perceelopervlakte
351 m2

Bouwjaar
1990

Soort bouw
EENGEZINSWONING

Omschrijving

Ruime helft van dubbel woonhuis (189 m²) met o.a. kantoor of slaapkamer op de begane grond, energielabel A, 16 zonnepanelen én een zonnige tuin op het zuiden.

In de geliefde wijk Marsdijk staat deze royale helft van een dubbel woonhuis met 189 m² woonruimte, een kantoorruimte op de begane grond die ook uitstekend dienst kan doen als slaapkamer, en een fraai aangelegde tuin op het zuiden. De woning ligt gunstig ten opzichte van de A28, het winkelcentrum van Marsdijk, scholen, kinderopvang en sportvoorzieningen. Het perceel omvat 351 m² eigen grond en biedt veel mogelijkheden voor een gezin, werken aan huis of gelijkvloers wonen.

Indeling:
Begane grond:
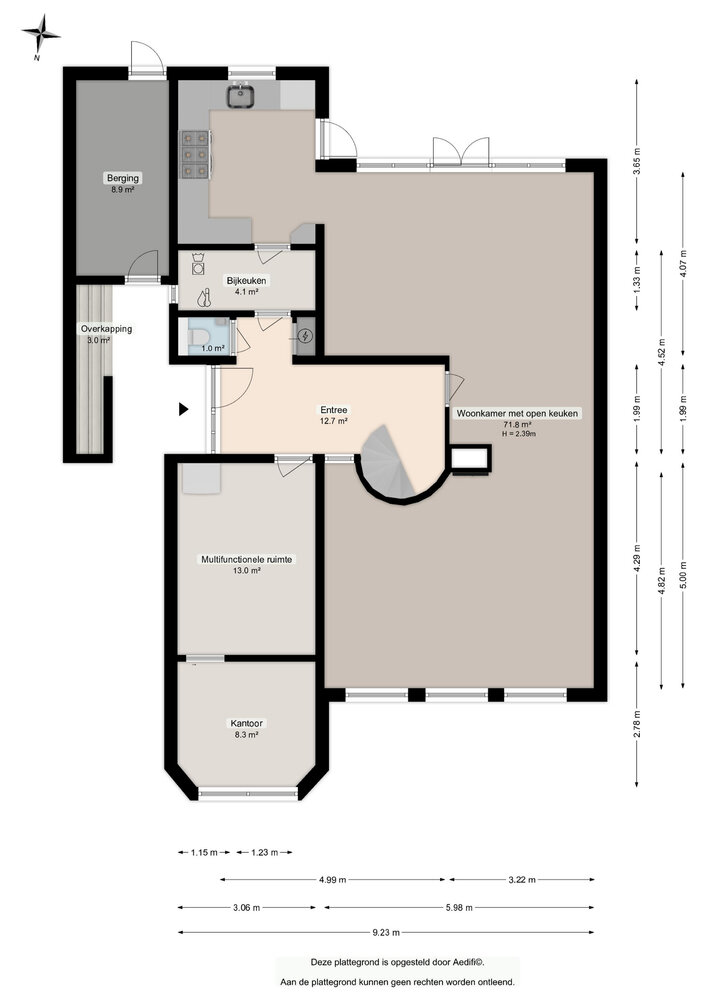
De entree met toiletruimte geeft toegang tot de kantoorruimte op de begane grond. Deze kamer is circa 21 m² groot en door de brede opzet ook geschikt om te gebruiken als slaapkamer. Vanuit de hal bereikt u de bijkeuken met aansluitingen voor wasmachine en droger en de CV-opstelling. De woonkamer met halfopen keuken heeft een totale oppervlakte van ongeveer 72 m². Aan de voorzijde bevindt zich een sfeervolle zithoek met open haard; aan de achterzijde lopen de eetkamer en keuken mooi in elkaar over. Via de openslaande deuren bereikt u de zonnige achtertuin.

Eerste verdieping:
Op deze verdieping bevinden zich drie slaapkamers. De slaapkamer aan de achterzijde, bijna 11 m² groot, beschikt over toegang tot het balkon dat net als de tuin op het zuiden ligt. De andere twee slaapkamers, allebei circa 13 m², liggen aan de voorzijde en aan de zijkant van de woning. De badkamer is in 2018 vernieuwd en voorzien van een ligbad, een regendouche, een wastafelmeubel, een tweede toilet en een handdoekenradiator.

Tweede verdieping:
De zolderverdieping is in 2024 volledig gerenoveerd en ingericht als ruime vierde slaapkamer van bijna 20 m². Dankzij de grote dakramen is dit een lichte ruimte met daarnaast veel bergruimte achter de knieschotten en de vliering die met een ladder te bereiken is.

Tuin:
De achtertuin ligt vol op het zuiden, is netjes aangelegd en bereikbaar via de openslaande deuren in de woonkamer. De tuin beschikt over een achterom. Op de oprit is ruimte om drie auto’s op eigen terrein te parkeren.

Bijzonderheden:
- Energielabel A
- Zonnige tuin op het zuiden
- Badkamer vernieuwd in 2018
- Kantoorruimte op de begane grond (voormalige garage)
- Buitenschilderwerk 2025
- 16 zonnepanelen van 300 Wp (2019)
- Zolder in 2024 verbouwd tot 4e slaapkamer

Kenmerken

  • Woonhuistype: Twee_onder_een_kapwoning
  • Bouwvorm: Bestaande bouw
  • Daktype: Zadeldak
  • Energieklasse: A

Deze woning is al verkocht door ben-s.nl!

Wilt u ook uw woning door een makelaar van ben-s laten verkopen? Vul dan het onderstaande formulier in.